734 S St John Ave

Historic Stimson American Foursquare


5 BED | 3 BATH | 2,732 sqft | Lot 14,364 sqft | Built 1896

Become an owner of Pasadena’s rich and resilient history! The renowned George W. Stimson designed this Classic American Foursquare in 1896. Mr. Stimson was also responsible for the design of The Markham Place Historic Landmark District. This well-crafted two-story treasure boasts 2,732 Square feet of living space. Step into a cozy foyer offering a sense of elegance and openness. The living room bathed in natural light, creating a bright and inviting space that seamlessly flows into a formal dining room. This harmonious layout is perfect for entertaining or simply enjoying the warmth and charm of the home. The main floor also features two generous flex rooms, each with its own bathroom. The large kitchen provides a spacious foundation for future updates, while the sunroom offers the ideal space for tranquil transformation. The upstairs feature a full bath and four additional bedrooms including one with exclusive access to a private balcony that overlooks a serene backyard. Another bedroom boasts an expansive walk-in closet, bathed in natural light, creating a bright and airy retreat. Outside, the property offers an expansive 14,364 square feet of potential, providing endless opportunities to create your dream oasis. Imagine a lush, landscaped backyard with vibrant gardens, towering trees for shade, and a tranquil patio area perfect for entertaining or relaxation. This home is a testament to history, where every wall tells a story, every room holds cherished memories, and every corner echoes a bygone era with timeless pride. It embodies the quality and distinctive charm of Pasadena's foundational architectural movement, offering a glimpse into a rich and enduring legacy.

Offered at $1,360,000

Property Photos

Property Video

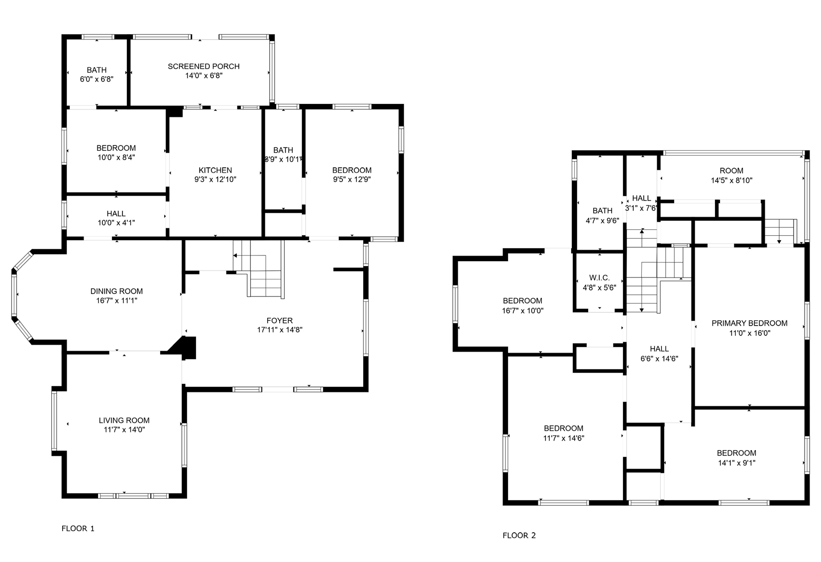
Floor Plan


Floorplan

Next Steps

Frequently Asked Questions

If you haven't already, please review the most common questions and answers.


READ FAQ

Seller Disclosures Package

Please download and review the Seller Disclosures package to learn more about this property.


DOWNLOAD NOW

Request A Showing Appointment

Please submit your pre-qualifying documents to be invited to schedule a showing.

REQUEST SHOWING

Listing Represented By:

Michael B. Bell

Michael "Lloyd" Slaughter

Mutual Realty Consultants

lloydsrealty123@yahoo.com

DRE 01397846

All content ©2025 EGP Imaging. All Rights Reserved. Information deemed reliable, but not guaranteed. The information set forth on this site is based upon information which the listing brokers consider reliable, but because it has been supplied by third parties, we cannot represent that it is accurate or complete, and it should not be relied upon as such. The offerings are subject to errors, omissions, changes, including price, or withdrawal without notice. All dimensions are approximate and have not been verified by the selling party and cannot be verified by the listing agents. The City makes no representations regarding the accuracy of the information contained herein. It is recommended that you hire a professional in the business of determining dimensions, such as an appraiser, architect or civil engineer, to determine such information. Equal Housing Opportunity.